EDFP214C

Soft Sides® Single ADA Fountain Non-Filtered Non-Refrigerated Stainless

ADA Yes
Installation Location Indoor + Outdoor
Application Classroom
Power No Electrical Required
Finish Stainless Steel
Gauge 18
Number of Stations 1
Bubbler Style Flexi-Guard ® Safety Bubbler
Filtered No
Chilling Capacity Non-refrigerated
Mounting Type Wall Mount (On Wall)
Included with Product Fountain
Country Of Origin USA
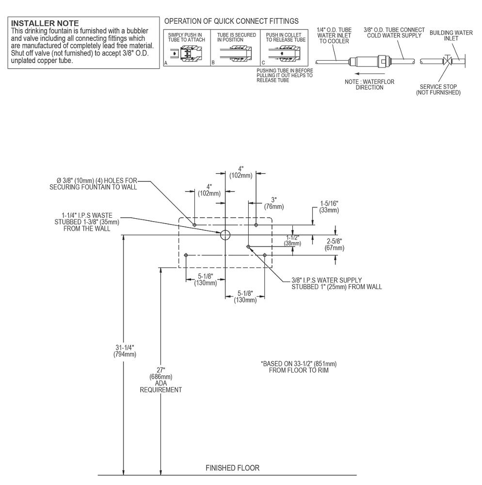
Dimensions L: 12-1/8"
W: 18-3/4"
H: 6-1/2"
Shipping Dimensions L: 28-11/16"
W: 21"
H: 16"
Shipping Weight 16 LBS
Code Compliance ASME A112.19.3/CSA B45.4
CSA B45.4
NSF REG4
NSF 61
NSF 372

Soft Sides® architectural drinking fountains feature softly rounded corners and a Contoured basin designed to provide a splash-resistant surface.

  • Contoured fountain provides an attractive and safe product
  • Mechanical bubbler push button continues to provide water when electrical service is interrupted
  • Flexi-Guard bubbler provides a flexible antimicrobial mouth guard that protects against injury and microorganisms from growing on it
  • Stainless steel finish is corrosion resistant and attractive
  • Bottom cover plate conceals plumbing and internal components
  • Rated for indoor or outdoor use